Denah Saluran Air Rumah
Utilitas Bangunan Rumah Tinggal 2 Lantaidocx. Download Gambar Kerja Denah Instalasi Air Ac Lantai 1 Dan 2 Rumah 2 Lantai.
Aug 08 2016 Gambar 1.

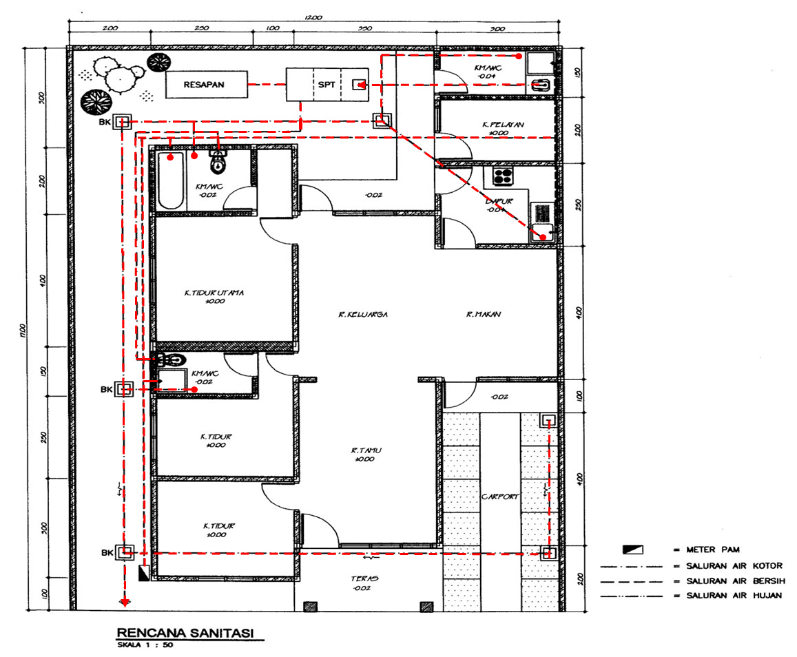
Denah saluran air rumah. Denah Instalasi Air Kotor Lantai 1 dwg - Gambar kerja hotel dwg Download bestek rumah 2 lantai dwg Autocad dwg files free download file dwg. Lubang air pada trotoar street inlet yaitu lubang yang berfungsi untuk mengalirkan air yang berasal dari jalan yang beraspal. Selain memiliki rumah yang cukup luas anda juga perlu memperhatikan beberas saluran drainase untuk air hingga saluran drainase untuk pembuangan dari area toilet dan juga dapur.
Penyelesaian yang terlalu lama dapat menyebabkan berbagai masalah di rumah. Instalasi Listrik Lampu Stop Kontak Instalasi CCTV. Di satu sisi keberadaanya sangat vital karena mengalirkan air bersih ke dalam rumah.
Video ini menampilkan cara memasang reng pakuan rabung atap dan saluran air yang lurus dan sejajar pada jurai untuk keindahan atap model limas pada rumah mi. A Saluran air hujan Gambar 121 Saluran Air Hujan b Terbuka terletak dibawah saluran atap dan harus dapat mengalirkan air hujan ke saluran air hujan lingkungan dengan kemiringan minimal 2 c Saluran air bekas mandi dan cuci. Apr 10 2020 Bila anda memiliki masalah dengan saluran air mampet maka segera selesaikan dalam waktu singkat.
Beberapa elemen penting tersebut sangat pentin untuk anda perhatikan agar tidak mengganggu lingkungan bahkan tetangga sekitar. Lubang air pada dinding saluran wheep hole yaitu lubang yang berfungsi untuk mengalirkan air resapan yang berasal dari tanah sekitar saluran drainase sehingga tanah tidak menjadi berlumpur dan becek 2. Fasad atap rumah Tak perlu berlebihan dengan model atap pada desain rumah ukuran 7 x 11 m ini anda bisa menggunakan model atap perisai atau limasan seperti yang terlihat diatas.
Mar 26 2020 Secara umum desain plumbing harus dibedakan antara saluran untuk air bersih air kotor dan air sisa. Bak kontrol air kotor adalah komponen penting yang memperlancar belokan saluran air pada hunian seperti rumah. SPESIFIKASI TEKNIS PEKERJAAN MEKANIKAL ELEKTRIKAL.
-Dasar Rumah Sehat 21 2 Air kotor Saluran untuk air buangan dibedakan menjadi. Dengan rutin melakukan pengecekan pada bak kontrol kemungkinan terjadinya penyumbatan akan mudah diminimalisir. 30 Inspirasi Desain Denah Rumah 4 Kamar Tidur 1 Lantai 3D Berikut ini lebih dari 30 contoh desain denah rumah 4 kamar 3d 1 lantai yang bisa Anda jadikan referensi dalam membangun rumah impian.
Anda juga bisa membuat saluran drainase di bahu jalan sebagai akses air dengan mengkombinasikan taman agar lebih cantik. Salah satu hal yang dapat dilakukan untuk menambah skill yang kita miliki adalah dengan banyak belatih. PENDAHULUANMenggambar merupakan salah satu cara komunikasi antara seseorang dengan yang lainnyasehingga dengan melihat suatu gambar maka seseorang akan dapat mengerti arti gambar ituKarena gambar teknis merupakan suatu alat komunikasi maka gambar teknis tidak.
Tanpa pipa sulit dibayangkan bagaimana sulitnya mendapatkan suplai air untuk memasak air. Belajar menjadi seorang arsitek memang bukan perkara mudah. Dasar-Dasar Rumah Sehat 19 2 Air kotor Saluran untuk air buangan dibedakan menjadi.
Salah satunya terhambatnya aktivitas yang berhubungan dengan saluran air. A Saluran air hujan Gambar 121 Saluran Air Hujan b Terbuka terletak dibawah saluran atap dan harus dapat mengalirkan air hujan ke saluran air hujan lingkungan dengan kemiringan minimal 2 c Saluran air bekas mandi dan cuci. Sebelum memilih contoh desain rumah anda tentu harus tahu bagaimana denah rumah minimalis anda untuk perencanaan selanjutnya.
Denah Lantai Dasar dan lantai 1-3 Rusunawa Buruh Industri. Beberapa sistem utilitas yang diperluka pada bangunan tersebut ialah. SPESIFIKASI TEKNIS RPH 1 By muhammad radhi.
Bangunan merupakan rumah susun 4 lantai yang digunakan para buruh industri. Meski sebagian besar Desain Rumah Minimalis memiliki denah dengan jumlah ruangan yang sama anda masih bisa memilih penataan ruang antara lantai 1 dan lantai 2 pada denah rumah minimalis yang sesuai dengan selera anda. Bak kontrol memudahkan pengguna saluran drainase untuk membersihkan faktor yang menjadi tersumbatnya saluran drainase tersebut.
Untuk itu jika terjadi masalah pada saluran air maka disarankan untuk segera menghubungi ahli. May 20 2017 Gambar 019. Feb 27 2012 Gambar teknis perencanaan drainase 1.
Instalasi Air Bersih dan Air Kotor.

Denah Rencana Instalasi Air Kotor Lantai 2

Instalasi Pipa Saluran Air Kotor Dalam Rumah Produk Terbaik Sbj

Denah Saluran Air Kotor Pdf Document

Gambar Kerja Rumah 2 Lantai Gambar Arsitektural Mekanikal Elektrika
Http Besmart Uny Ac Id V2 Mod Resource View Php Id 29616
Http Besmart Uny Ac Id V2 Mod Resource View Php Id 29616
Http Besmart Uny Ac Id V2 Mod Resource View Php Id 29616

Gambar Denah Plumbing Rumah Tinggal Rumahmen

Cara Gambar Denah Sanitasi Air Bersih Air Kotor Di Autocad Youtube
Gambar Kerja Sanitasi Rumah Simpel Sederhana Ide Kreasi Rumah

35 Gambar Instalasi Air Bersih Rumah Tinggal Terlengkap Koleksi Gambar Rumah Terlengkap

93 Contoh Denah Instalasi Air Bersih Dan Air Kotor Yang Bisa Anda Tiru Denah
Video Tutorial Autocad 2017 Membuat Gambar Kerja Sanitasi Dan Elektrikal Rumah 2 Lantai Available Now Argajogja S Blog

Gambar Denah Rencana Air Kotor
Gambar Kerja Arsitektural Dan Utilitas Rumah Minimalis 2 Lantai Di Lahan Hook Argajogja S Blog

Denah Sanitasi Rumah Murah Samarinda
23 Pl 01 01 Denah Instalasi Air Bersih


0 Response to "Denah Saluran Air Rumah"
Posting Komentar